Industriële automatisering

Technische uitwerking van mechanische oplossingen voor industriële automatisering, van concept en 3D-ontwerp tot productie- en montagegereed tekenwerk.
Ontwerpen zijn gericht op maakbaarheid, betrouwbaarheid en een efficiënte integratie binnen bestaande of nieuwe installaties.


Geautomatiseerde verpakkingsopstelling

Destijds is voor een klant een 3D-opstelling ontwikkeld voor een geautomatiseerde verpakkingslijn. Kartonnen dozen worden via een transportband aangeleverd en op een werkplateau gepositioneerd, waar de producten worden toegevoegd.

De industriële robot plaatst de producten in de dozen en sluit deze met een speciaal ontwikkelde grijper, waardoor meerdere handelingen binnen één robotcyclus plaatsvinden.

De installatie is volledig in 3D uitgewerkt en vertaald naar werktekeningen, waarmee de klant inkoop en productie zelfstandig kon realiseren.

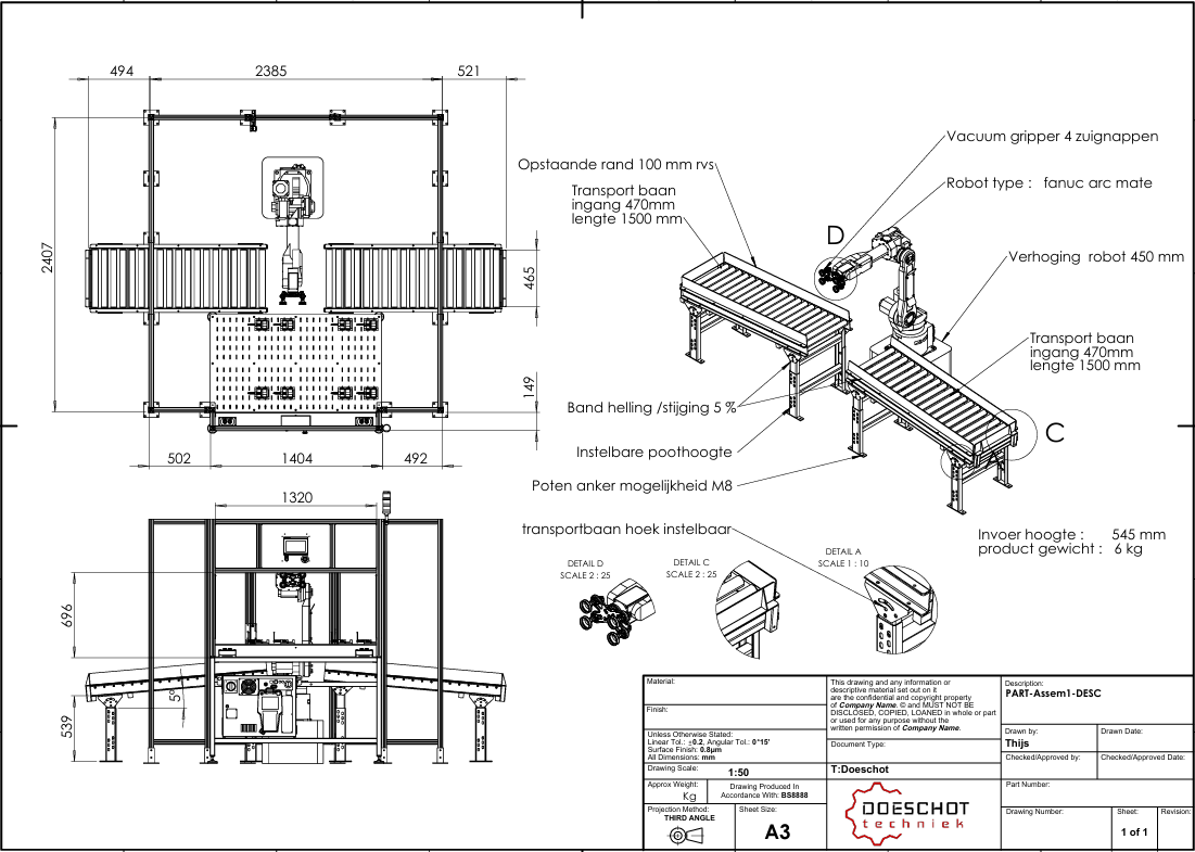
Geautomatiseerde los- en palletiseeropstelling

Voor deze opstelling is een 3D-concept uitgewerkt voor plaatsing direct achter een laaddock voor vrachtwagens. Het uitgangspunt was om pakketten die uit een vrachtwagen worden gelost, automatisch te verwerken richting opslag.

De pakketten worden via een triangel-transportband aangevoerd naar een industriële robot. De robot is uitgerust met een zuignapgrijper en pakt de pakketten één voor één op om deze gecontroleerd te stapelen op pallets. De opgebouwde pallets kunnen vervolgens worden afgevoerd en in de opslaghal worden geplaatst.

De installatie is ontworpen als een compacte en logisch opgebouwde oplossing, gericht op een efficiënte overgang tussen lossen, palletiseren en interne logistiek. Het volledige concept is mechanisch uitgewerkt in 3D en vormt een duidelijke basis voor verdere engineering en realisatie.

Van 3D-ontwerp naar werktekening

Vanuit de 3D-opstelling is de installatie verder uitgewerkt tot complete 2D-werktekeningen. De hoofdassembly vormt hierbij het uitgangspunt, waarna alle samenstellingen en onderdelen zijn gedetailleerd. De uitwerking is afgestemd op de wensen van de klant en bedoeld als praktische documentatie voor inkoop, productie en montage.

Interesse gewekt?
Wij denken graag met u mee

Heeft u een vraag, een technisch vraagstuk of een concreet project waarbij wij iets voor u kunnen betekenen? Neem gerust contact met ons op. We bespreken uw wensen, denken constructief mee en vertalen dit naar een praktische en maakbare oplossing.

Adres

't Kemerink 35

7497 MN Bentelo

Sociale media